鋼梯護欄圖片


鋼梯護欄
鋼梯護欄基礎參數
- 鋼梯護欄用料:圓管,方管,角鋼,槽鋼,方鋼
- 鋼梯護欄材質:鐵,不銹鋼,鋁合金
- 鋼梯護欄厚度:1-3mm 3-10mm
- 鋼梯護欄款式:TL1-TL24型號
鋼梯護欄應用
鋼梯護欄設計荷載
欄桿安裝后,頂部扶手應能承受水平和垂直方向不小于 890N的集中荷載和不小于 700N/m 的均布荷載 相鄰兩個立柱之間的最大撓曲變形不大于跨度的 1/250 中間欄桿應能承受在中點圓周上施加的不小于 集中荷載,最大撓曲變形不大于700N 水平 75mm 承受在立柱頂部禱,力口的任何方向上。端部或末端立柱應能 890N 的集中荷載
鋼梯護欄材料與安裝
欄桿采用鋼材力學性能不低于 格證的鋼材Q235-B ,并具有碳含量合 所有欄桿均可用不銹鋼制作 欄桿的焊接要求應符合《鋼結構工程施工質量驗收規范》 GB50205-2001 證結構設計強度的規定。當焊接不便時可用螺栓連接,但應保 鋼質欄桿的涂裝要求可以熱鍍鋅和噴漆,噴塑 施工中如果用其他型鋼取代圖集中的立柱或減少立柱截 面尺寸,都應按荷載規范認真核算,以確保安全
鋼梯護欄設計選用要點
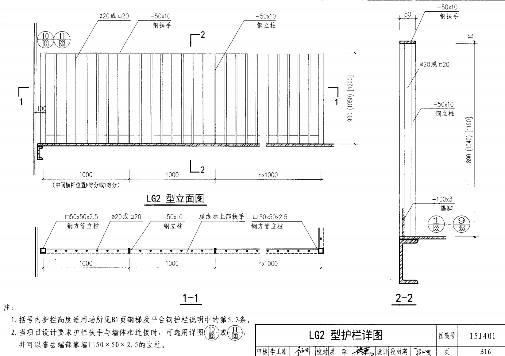
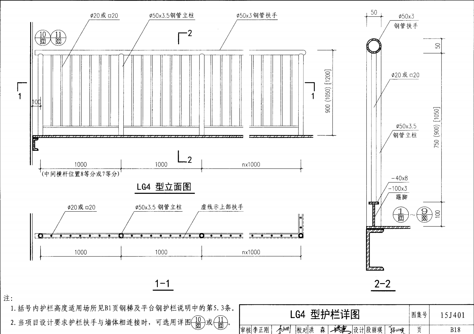
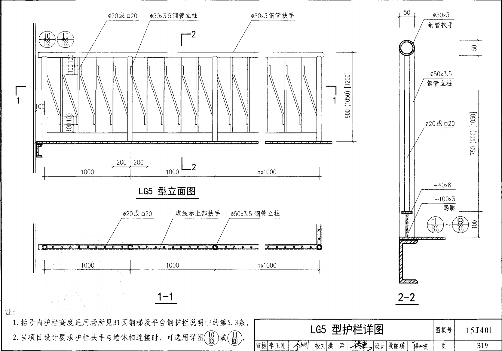
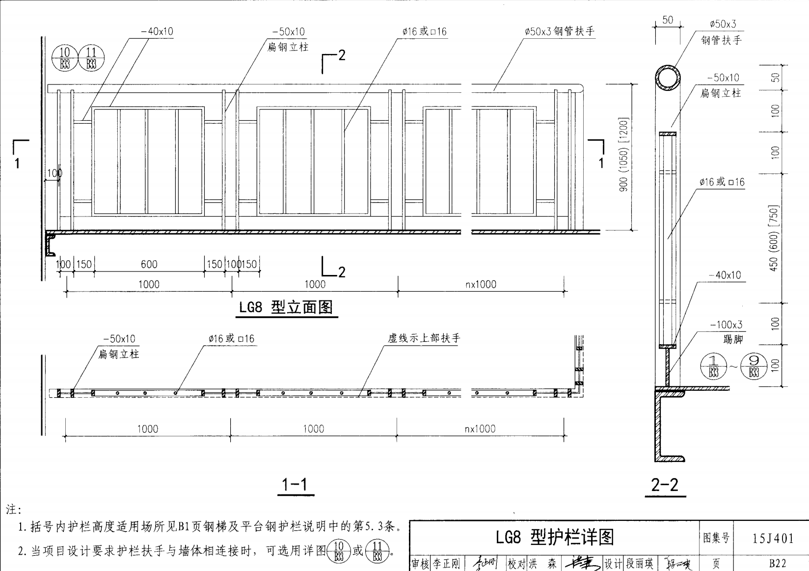
本圖集的作業平臺鋼梯欄桿分為用于銅板梯梁和槽鋼梯 梁兩大類距下方相鄰地坪 邊緣均應設置工業防護欄桿1. 2m 以上的作業平臺或工作面所有敞開 作業平臺鋼護欄高度要求按客戶要求和15J401圖集標準 高作業場所距基準面高度 900mm< 2m 時,欄桿高度應不低于 高作業場所距基準面高度 不低于2m < 20m 時,欄桿高度應 1050mm 高作業場所距基準面高度 1200mm20m 時,欄桿高度應不低于 在作業平臺或工作面上可能使用工具、機器部件或物品 的場合,應在所有敞開邊緣設置踢腳板或結構板做翻邊,踢腳板的高度不應小于lOOmm "建議采用 100 x 3mm 的鋼板 在扶手和踢腳板之間,應設置中間欄桿,確保中間欄桿 與上下構件間形成的空隙間距不大于500mm 本圖集提供了欄桿門的做法。欄桿門的高度和式樣都應 與作業平臺鋼護欄的高度和式樣相同欄桿門是與欄桿配套選用的,在設計時可根據項目要求 用文字注明,本圖集不做編號和代號
鋼梯護欄型號介紹
作業平臺鋼梯欄桿:TL 作業平臺鋼梯欄桿代號,例如:TLl ,表示鋼梯欄桿的編號為 TLl 型 作業平臺鋼護欄:LG 作業平臺鋼護欄代號例如:LG2a 一 護欄,高度為1050 ,表示為工業防護欄桿型號為 LG2 的正裝式 1050mm
鋼梯護欄安裝

作業平臺鋼梯欄桿索引圖

作業平臺鋼梯欄桿索引圖

鋼梯欄桿詳圖(用于鋼板梯梁)

鋼梯欄桿詳圖(用于鋼板梯梁)

鋼梯欄桿詳圖(用于鋼板梯梁)

鋼梯欄桿詳圖(用于鋼板梯梁)

鋼梯欄桿詳圖(用于槽鋼梯梁)

鋼梯欄桿詳圖(用于槽鋼梯梁)

鋼梯欄桿詳圖(用于槽鋼梯梁)

鋼梯欄桿詳圖(用于槽鋼梯梁)

作業平臺鋼護欄索引圖

作業平臺鋼護欄索引圖

LG1 型護欄 羊圖

LG2 型護欄詳圖

LG3 型護欄詳圖

LG4 型護欄詳圖

LG5 型護欄詳圖

LG6 型護欄詳圖


LG7 型護欄詳圖

LG8 型護欄詳圖

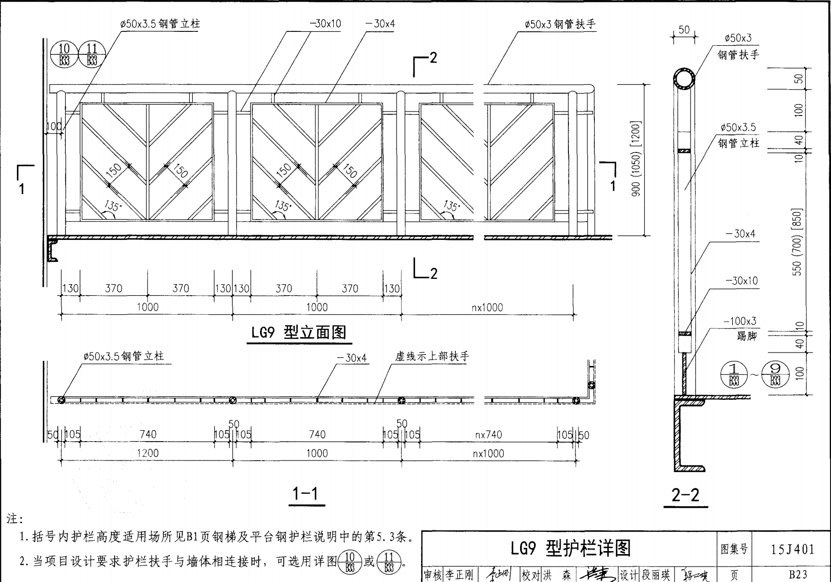
LG9 型護欄詳圖

LG10 型護欄詳圖

LG11 型護欄 羊圖

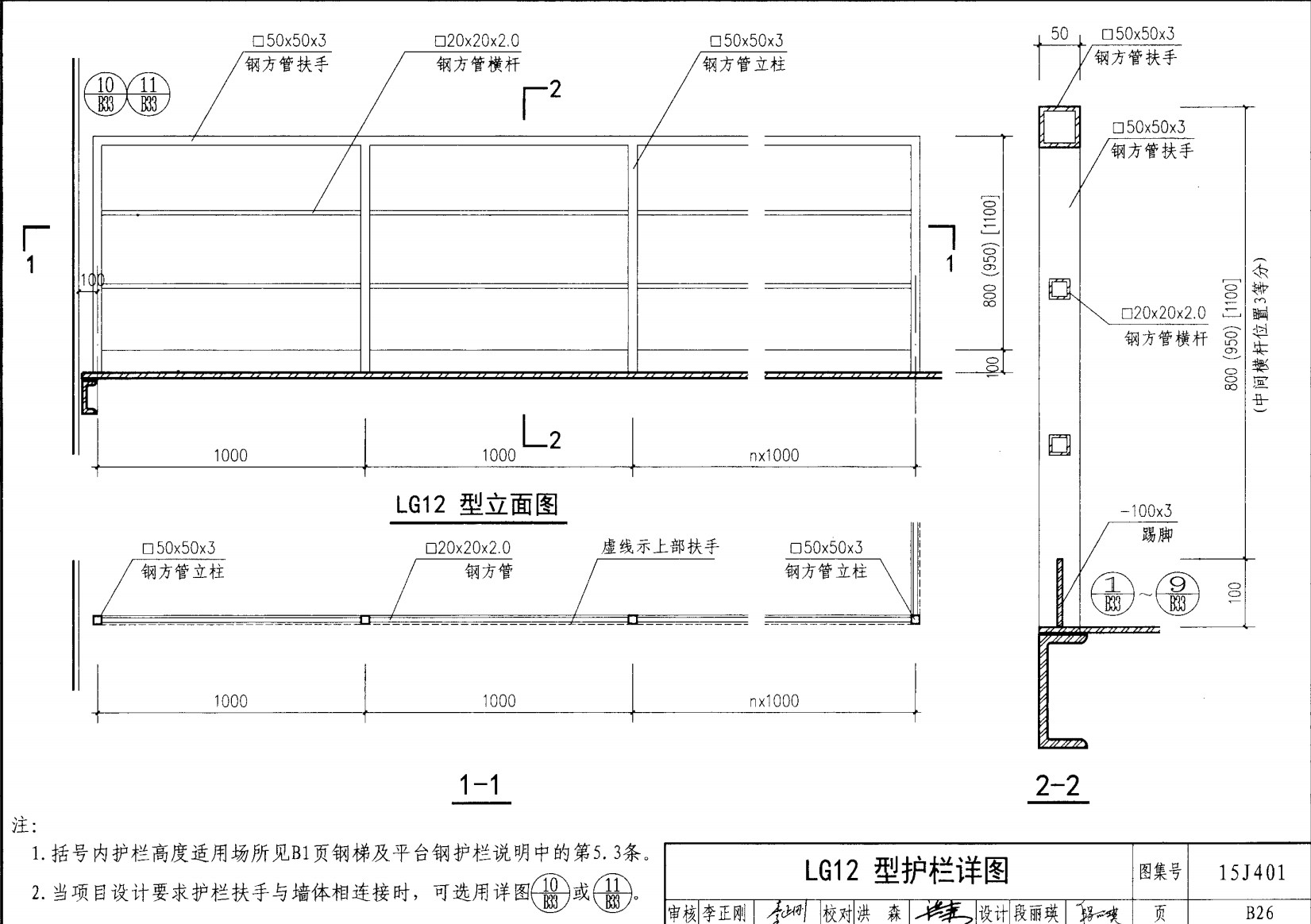
LG12 型護欄詳圖

LG13 型護欄詳圖

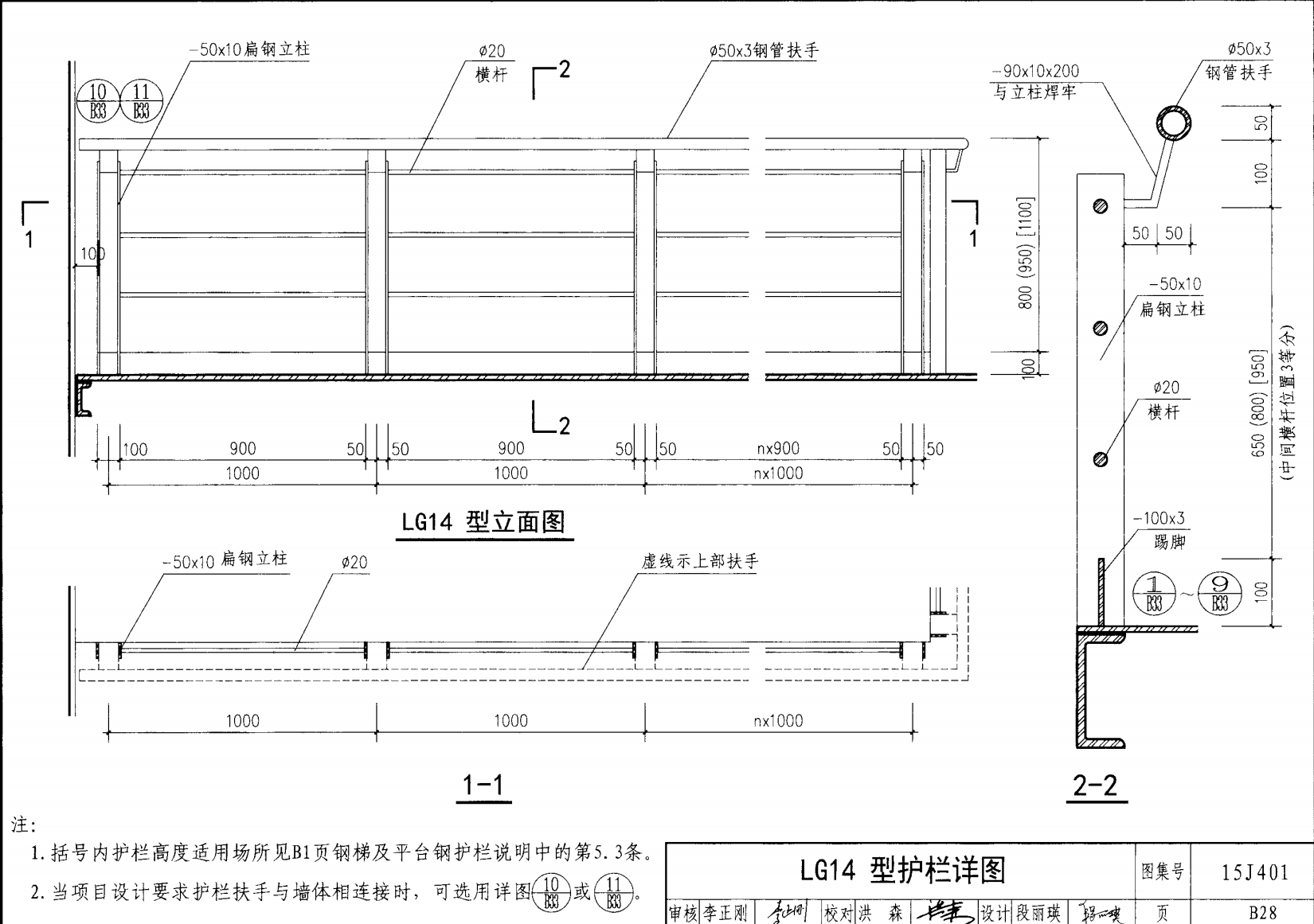
LG14 型護欄詳圖

LG15 型護欄詳圖

LG16 型護欄詳圖

護欄門立面、剖面圖

護欄門詳圖

護欄節點詳圖

